Квадратні метри у Коломиї постійно дорожчають. Проте зекономити на оренді приміщення під офіс таки можливо. Наприклад зараз у будівлі пошти здається відремонтоване приміщення за невисоку ціну.
Інформатор розповість детальніше.
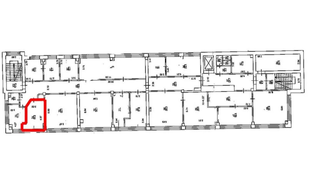
Йдеться про приміщення на 4 поверсі будівлі центральної пошти, що на вул. Чорновола, 45. На аукціон за правом тривалої оренди цю нерухомість виклали за стартовою ціною всього 550 грн. Площа приміщення складає 14,8 м².

Приміщення під'єднане до електропостачання. Дозволена потужність – 3,0 кВт. Опалення – газове. Також до лоту належить і земельна ділянка – 0,1486 га за договором оренди.
Строк оренди становить 2 років 11 місяців.
Аукціон запланований на 5 лютого. Подати свої заявки на участь можна до 20:00 4 лютого 2025 року. Перейти на аукціоном можна за посиланням ТУТ.

Нагадаємо раніше трохи менше приміщення на цьому ж поверсі орендував приватний підприємець за 600 грн/міс. Детальніше читайте ТУТ.
Будьмо на зв’язку! Читайте нас у Facebook, Telegram, Viber та Instagram. Якщо маєте цікаві новини чи хочете замовити рекламу – пишіть нам на пошту kl.informator@gmail.com